Einfamilienhaus 180 PDv
Die großzügige Raumaufteilung und die helle Atmosphäre machen dieses Haus zu einem Ort, an dem man sich wirklich wohlfühlt.
Mit Mihm Thermohaus als Baupartner können Sie sicher sein, dass Ihr Traumhaus nach höchsten Qualitätsstandards und mit viel Liebe zum Detail gebaut wird.
Kontaktieren Sie uns einfach und lassen Sie sich beraten, wie wir Ihr Traumhaus Realität werden lassen können.
| Bauweise | Modulare Holzbauweise |
| Dachform | Pultdach |
| Dachneigung | 12° |
| Geschosse | 2 |
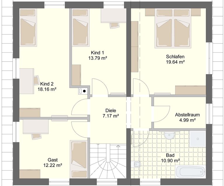
| Zimmer | 6 |
| Außenmaße | 10,99m x 10,115m |
| Wohnfläche | 180m² |
Inklusivleistungen
- Individuelle Planung
- Bodengutachten
- Energieausweis
- Verschiedene Bauversicherung
- Komplettservice für Finanzierung
- 12 Monate Festpreisgarantie
- Statik inkl. Prüfstatik
- Blower-Door-Test
Galerie / Impressionen
Individualisierung
inklusive
Unsere vorgeplanten Haustypen sind das Ergebnis von viel Leidenschaft und Erfahrung und stellen für viele Kunden bereits das Optimum in Bezug auf Design, Ausstattung, Grundriss sowie Energetik dar. Mit Thermo Bausatzhaus können Sie aber auch ihr ganz individuelles Traumhaus verwirklichen: Lassen Sie sich von unseren Hausvorschlägen inspirieren und wählen Sie den Haustyp, der Ihnen am besten gefällt. Dann arbeiten Sie mit unseren Architekten zusammen, um ihn nach Ihren Wünschen anzupassen. Ob Sie mehr Platz brauchen oder die Dachform ändern wollen: Das Besondere an Ihrem Thermo Bausatzhaus ist, dass Sie alles selbst entscheiden können – keine festen Maße, keine vorgegebenen Raumgrößen.
Und das Beste: Die Architektenleistung zur Individualisierung Ihres Traumhauses ist bei jedem Thermo Bausatzhaus bereits inklusive.
Lassen Sie sich
umfassend beraten
Sie möchten ein Haus bauen, wissen aber nicht, wo Sie anfangen sollen? Wir bieten Ihnen eine umfassende Beratung zum Thema Hausbau, von der Planung über die Finanzierung bis zur Ausführung. Wir helfen Ihnen, Ihre individuellen Wünsche und Bedürfnisse zu verwirklichen und das passende Haus für Sie zu finden.
